5.0
Нас выбрали
5 389 клиентов

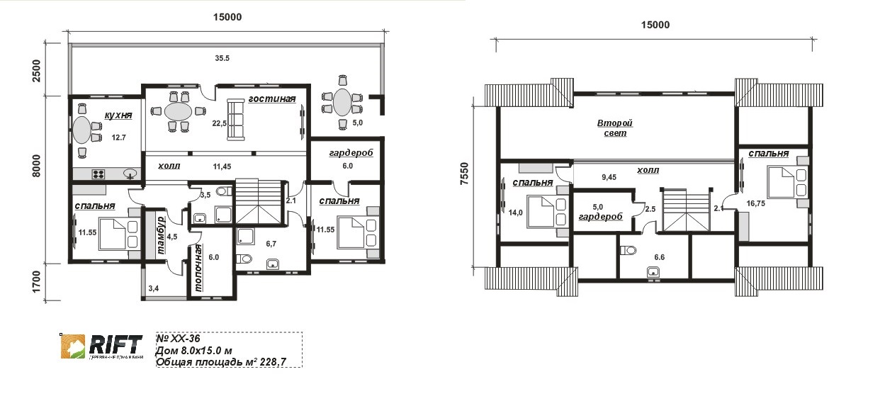
Современный каркасный дом XX36

Современный каркасный дом XX36

Этажи: Два этажа
Размер: 15x8 м
Площадь: 229 м2
Тип: Каркасный
Стоимость
Без отделки: 6 100 000 руб
C отделкой: 7 900 000 руб
В ипотеку
от 85 265
руб/мес
Работаем с ипотекой по эскроу счетам
Строим без предоплаты

Мы работаем без предоплаты. Вы платите только по завершению этапа строительства

Выставочная площадка

Почувствуйте атмосферу вашего будущего дома

Планировка
5
Комнат
1
Кухня
3
Санузел
Комплектация
Без отделки

6 100 000 руб

С отделкой

7 900 000 руб

Фундамент

Свайно-Винтовой фундамент
D 108 мм.
L 2500 мм.
Ленточный фундамент — опционально

Материал

Используем сухой материал камерной сушки

Коммуникации

Ввод закладных труб для канализации и водоснабжения по согласованию с Заказчиком.

Силовой каркас

Силовой каркас первого этажа и фронтоны выполняются из качественной доски 150х40 мм.
C шагом 590 мм.

Утепление и шумоизоляция

Используется только профессиональный утеплитель на основе каменной ваты повышенной плотности Технониколь и ROCKWOOL (производится из натуральных природных компонентов вулканических пород базальтовой группы), соответствует международным требованиям качества ISO-9001

Толщина стены

200 мм

Вентилируемый фасад

OSB-3
Имитация бруса камерной сушки 9-12% влажности

Внутренние стены и потолок

Вагонка камерной сушки 9-12% влажности

Высота потолка

2500 мм

Кровля

Металлочерепица Гибкая черепица “TEGOLA”, “KATEPAL” (опционально)

Свесы и подбои

Вагонка камерной сушки 9-12% влажности

Пол

Черновой пол выполняется из доски 25 мм, чистовой пол выполняется из OSB-3 толщиной 18 мм

Окна

ПВХ цвет белый

Дверь

Входная дверь металлическая, утепленная. Два замка, ночная задвижка

Межэтажная лестница

Техническая
Деревянная лестница

Терраса и балконы

Входит в стоимость проекта при наличии на чертеже

Мы контролируем весь процесс строительства по этому даем гарантию 5 лет
Технический контроль качества обеспечивает высокие стандарты на всех этапах строительства, гарантируя надежность и долговечность каркасных домов с вниманием к деталям и открытостью для клиентов
Входит в стоимость
Рассчитайте стоимость дома онлайн
Рассчитываем cтоимость строительства
Предварительные работы
01

Разработка проекта

02

Перепланировка БЕСПЛАТНО

03

Подготовка комплекта документов для согласования в БТИ

04

Выезд специалиста на объект

Похожие проекты

Преимущества деревянных домов

Эстетические качества
Каркасный дом в Раменском
Деревянные дома привлекают своей красотой и разнообразием архитектурных решений благодаря гибкости материала
Комфортный микроклимат
Древесина «дышит», что способствует созданию здоровой и комфортной атмосферы внутри дома
Экологичность
Каркасный дом в Раменском
Дерево — натуральный и безопасный для здоровья материал, не выделяющий токсичных веществ
Долговечность
Каркасный дом в Раменском
При правильной обработке и уходе деревянные конструкции могут служить более 80 лет
Быстрота возведения
Каркасный дом в Раменском
Деревянные конструкции строятся быстрее по сравнению с кирпичными или бетонными, что позволяет быстро переехать в новое жилье
Отличная теплоизоляция
Каркасный дом в Раменском
Дерево сохраняет тепло в зимний период и поддерживает прохладу летом, что помогает снизить затраты на отопление и кондиционирование
Почему заказчики выбирают RIFT
Каркасный дом в Раменском
Бесплатный 3D-проект
Любая БЕСПЛАТНАЯ перепланировка в типовых и индивидуальных проектах
Заказать каркасный дом
Бесплатные консультации
Офис, смотровая площадка, выставочные образцы
Каркасный дом в Раменском
Оплата за результат
Фиксированная цена. Оплата только после строительства. Работаем по договору
Каркасный дом в Раменском
Собственный склад в Подмосковье
Заказчик контролирует качество материалов перед погрузкой
Каркасный дом в Раменском
Собственное производство
Производим пиломатериалы и окна ПВХ немецкого качеcтва КВЕ. Гарантия низких цен
Каркасный дом в Раменском
Собственный грузовой транспорт
Бесплатная доставка по Раменском, Московской области и Новой Раменском

Часто задаваемые вопросы

Могу ли я рассчитывать на скидку, если закажу строительство нескольких объектов одновременно?
Мы всегда стараемся максимально лояльно выстраивать отношения с клиентами, поэтому в качестве приятных бонусов предлагаем вам принять участие в различных акциях. Например, этой весной сократить расходы на строительство можно несколькими способами: бесплатно заказав разработку индивидуального проекта, замену деревянных окон на пластиковые, банную печь с установкой. Возможность получения скидки при комплексном заказе на несколько объектов обсуждается в индивидуальном порядке. В любом случае уверяем вас, что мы предложим сотрудничество по наиболее выгодной для вас схеме!
Поднимаете ли вы цены в ходе строительства, какие скидки и акции можете предоставить?
Безусловно, периодически цены на строительные услуги изменяются, поскольку наша компания плотно интегрирована в сформировавшийся рынок малоэтажного строительства. И вместе с тем мы всегда находим способы предложить нашим заказчикам разумную возможность сэкономить на расходах без ущерба качеству. Так, закупка материалов напрямую у ведущих заготовителей сырья и полный цикл строительных работ без привлечения сторонних субподрядчиков позволяет нам удерживать цены на комфортном уровне. Кроме того, мы регулярно проводим сезонные акции. Это могут быть скидки в зависимости от объема заказа, бесплатная замена оконных конструкций, разработка индивидуальных проектов и прочие бонусы.
Должен ли я оплачивать доставку домокомплекта при заказе дома в базовой комплектации?
Мы осуществляем бесплатную доставку по Раменском, Московской области и Новой Раменском. В остальных случаях транспортировка материалов к строительной площадке осуществляется за дополнительную плату. И вместе с тем мы прикладываем все усилия, чтобы эти расходы не были обременительными для наших заказчиков. Тарифы на доставку устанавливаются, исходя из удаленности участка для застройки от нашей производственной базы, сложности проекта, категории используемого автотранспорта.
Что входит в понятие строительства дома под ключ?
Строительство деревянного или каркасного дома под ключ предполагает, что на вашем участке будет возведен коттедж, что называется, с нуля. По сути, вам останется только получить ключи и начать обживаться в новом доме. Термин «под ключ» в строительной сфере уместно сравнить с понятием all inclusive в туризме. Вы приезжаете на нашу демонстрационную площадку, выбираете понравившийся проект. При необходимости наши архитекторы вносят в него изменения в соответствии с вашими пожеланиями. Проектная документация прикладывается к договору строительного подряда, и дальше мы приступаем к реализации проекта. Закупка материалов, доставка домокомплекта на участок, работы по отделке фасада и чистовая внутренняя отделка — все это осуществляется нашими специалистами. Кроме того, мы предлагаем широкий спектр дополнительных услуг — подключение к системам жизнеобеспечения, устройство водосточных систем и многое другое.
Должен ли я самостоятельно подготовить участок перед стройкой?
Если на участке уже имеются какие-либо подлежащие сносу строения, их необходимо демонтировать. По вашему желанию эту услугу можно дополнительно заказать и в нашей компании. Если на строительной площадке нет никаких объектов, в любом случае ее необходимо максимально привести в порядок: удалить насаждения и засыпать глубокие ямы. Кроме того, от вас требуется обеспечить подъезд строительной техники к участку, а также предоставить территорию для складирования материалов и установки бытовки для рабочей бригады.
Какие документы потребуются для заключения договора?
Помимо ваших паспортных данных и документов, в которых отражены ваши имущественные права на участок, понадобится ряд специфических бумаг, связанных с организацией работ на строительной площадке. При заключении договора необходимо указать тип подъездных путей, пропускную способность коттеджного поселка или садового товарищества, наличие ЛЭП в непосредственной близости от участка застройки. Это важно, поскольку, не обеспечив доступность подъезда или сообщив некорректные данные, вы можете перенести сроки начала работ и заплатить лишние деньги за «простой». Кроме того, проектной группе понадобятся результаты инженерно-геологических изысканий. Если вы не ограничиваетесь возведением теплового контура, а планируете заказать подключение к инженерным сетям и развод коммуникаций по дому, потребуется и соответствующая техническая документация — например, данные о максимальной выделенной электрической мощности на домовладение.
Строите ли вы дома в кредит?
Да, поскольку мы прекрасно понимаем, что строительство дома — это серьезное капиталовложение, и не у каждого есть возможность сделать такую инвестицию без привлечения заемных средств. Именно поэтому мы даем вам возможность воспользоваться предложением сразу двух авторитетных кредитно-финансовых учреждений — «Альфа-Банк» и «Кредит Европа Банк». Партнерские отношения с ними позволяют нам предложить вам выгодные условия. Кроме того, заключение договора строительного подряда с официальным застройщиком многократно повышает ваши шансы получить одобрение по кредитной заявке.
Предоставляете ли вы гарантию на свои объекты?
Мы работаем строго в рамках действующих законодательных норм. Согласно ст. 755 ГК РФ, гарантийный срок на объекты капитального строительства составляет 5 лет, если иное не предусмотрено договором. Следует понимать, что деревянные дома обладают определенной спецификой. Древесина усаживается, теряет влажность, реагирует на погодные изменения, поэтому прежде чем приступить к внутренней отделке, необходимо дать срубу «устояться» в течение года. Именно поэтому мы выполняем гарантийные обязательства по следующей схеме. Мы даем гарантию 1 год непосредственно на сруб и продлеваем ее еще на 3 года после окончания отделочных работ.
Из какой древесины вы строите дома?
Все представленные в нашем каталоге коттеджи строятся из профилированного или строганого бруса, а также из оцилиндрованного бревна. Для их производства мы используем исключительно хвойные породы — ель, сосну, кедр и лиственницу. Каждое из технологических решений обладает собственными достоинствами. Так, дома из строганного бруса отличаются огромным запасом прочности и долговечности. В результате обработки древесина сохраняет оптимальную влажность. Для конструкций из профилированного бруса характерна равномерная усадка, а прекрасный эстетический вид позволяет сэкономить на финишных отделочных работах. Дома из оцилиндрованного бревна, помимо аутентичного облика в лучших традициях славянского зодчества, отличаются паропроницаемости — в силу ряда технологических особенностей обработки.
Каковы преимущества дома из оцилиндрованного бревна?
Коттеджи, возведенные по данной технологии, — это прекрасный образец органичного объединения национальных архитектурных традиций и последних инноваций в строительной сфере. Бревнам в промышленных условиях придается правильная цилиндрическая форма. Точная геометрия пазов в виде чаш позволяет собрать надежную конструкцию по принципу конструктора. Во избежание теплопотерь и промерзания на стыках все элементы прокладываются джутовой лентой. Домокомлекты из оцилиндрованного бревна собираются в рекордно короткие сроки. Сборка также не требует большого числа рабочих рук, а это значительно уменьшает стоимость строительства. В отличие от бруса бревно не подвергается столь агрессивной промышленной обработке различными химическими составами, поэтому такой дом в наивысшей степени отвечает высоким стандартам экологической безопасности. Древесина сохраняет способность пропускать воздух, и это гарантирует поддержание уникального здорового микроклимата в помещениях.
Насколько хорошо деревянный дом удерживает тепло?
Ответ на вопрос кроется в элементарной физике. Древесина отличается меньшей теплопроводностью, чем кирпич, ячеистый бетон и арболит. У бруса и оцилиндрованного бревна достаточно высокая теплоустойчивость, а это значит, что и потери тепловой энергии значительно ниже, чем в случае с прочими конструктивными решениями. Для улучшения теплофизических характеристик в домах из оцилиндрованного бревна производится конопатка межвенцовых соединений и дополнительная герметизация стыков. В коттеджах, построенных из клееного бруса, в этих мероприятиях и вовсе нет необходимости, поскольку промышленная обработка материала позволяет добиваться идеальной герметичности конструкций. В холодное время года деревянный дом отлично сохраняет тепло, а летом — приятную прохладу.
Осуществляете ли вы выезд на объект, прежде чем заключить договор? Услуга платная?
Безусловно, прежде чем приступить к подбору проекта и оформлению договорных отношений, нам нужно посмотреть, с чем нам предстоит работать. Наш специалист по геологическим изысканием приедет на место будущей стройки по предварительной договоренности в удобное для вас время. Он оценит состояние подъездных путей, особенности рельефа, произведет пробу грунта и прочие необходимые работы. Для наших заказчиков эта услуга выполняется бесплатно — по сути, эта информация необходима нам как застройщику, чтобы корректно выполнить условия договора.
Занимаетесь ли вы индивидуальным проектированием?
Да, поскольку наша главная цель — построить дом вашей мечты. Мы осознаем, что ваши мечты не обязательно совпадают с видением нашего проектного бюро. Если среди типовых архитектурных решений вы не нашли того, которое бы полностью соответствовало вашим представлениям об идеальном доме для вашей семьи, мы разработаем для вас персональный вариант. Вариативность планировок, архитектурных форм, вариантов отделки — для нас нет ничего невозможного. Кроме того, любое проектное решение может быть адаптировано под строительство из всех доступных материалов: строганого и профилированного бруса, оцилиндрованного бревна, а также по каркасной технологии. Таким образом, индивидуальное проектирование решает сразу две задачи, а именно — предложить вам дом, который удовлетворяет вашим эстетическим потребностям и финансовым возможностям. При заключении договора строительного подряда услуга предоставляется бесплатно.

Мы подготовили ответы на все популярные вопросы, их можно посмотреть здесь

Остались вопросы?

Получите бесплатную консультацию

Ваш телефон
Задайте вопросы
Пишите нашим менеджерам
Каркасный дом XX36

Современный каркасный дом XX36